Haus zum Kauf in Hamburg
Einfamilienhaus auf Traumgrundstück in bester Wohnlage von Hamburg-Niendorf
Beschreibung
Bei dem angebotenen Objekt handelt es sich um ein großzügiges Einfamilienhaus, welches im Jahr 1968 auf einem traumhaften Süd-West Grundstück in bester und begehrtester Wohnlage von Hamburg-Niendorf, in unmittelbarer Nähe zum Niendorfer Gehege freistehend errichtet wurde. Das Straßenbild in der Umgebung ist überwiegend durch Einzelhausbebauung geprägt und durch die grüne und ruhige Lage optimal für Familien geeignet.
Ausstattung
Das Objekt wurde 1968 durch den namenhaften Niendorfer Architekten Herrn Heins Behrens für eine Hamburger Arztfamilie konzipiert und befindet sich seitdem in erster Hand.
Den Mittelpunkt dieses wunderschönen Hauses bildet das zum Garten gelegene, großzügige und lichtdurchflutete Wohn- und Esszimmer mit offenem Kamin, welches durch einen Durchbruch miteinander verbunden ist und somit ausreichend Stellplatz für eine umfangreiche Wohnzimmergarnitur und einen großen Esstisch bietet.
Die große Fensterfront verfügt über einen direkten Zugang auf die nach Süd-West ausgerichtete ca. 45 m² große Terrasse mit einem eingelassenen 22 m³ großen Pool, einer Gartendusche und Blick in den gepflegten, parkartig angelegten Garten mit Teichanlage.
Angrenzend zum Essbereich befindet sich die Küche, die mit einer Einbauküche ausgestattet ist. Zu dem befinden sich im Erdgeschoss zwei weitere gut geschnittene Zimmer, ein Duschbad sowie ein Gäste-WC.
Über die Steintreppe im imposanten Dielenbereich gelangt man in das Obergeschoss des Hauses, welches über ein großes Schlafzimmer mit Balkon und Blick in den Garten, drei weitere Zimmer, ein Vollbad und über ein Gäste-WC verfügt.
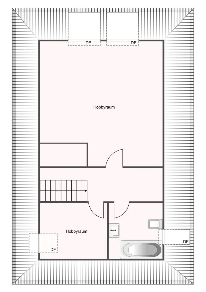
Der Spitzboden wurde ausgebaut und kann z.B. als Hobbyraum genutzt werden.
Das Objekt ist vollständig unterkellert und verfügt im vorderen Bereich über eine Doppelgarage, eine Sauna mit Dusche, ein separates Duschbad mit Außenzugang, einen Heizungsraum mit Waschmaschinenanschluss, zwei Kellerräume sowie einen Hobbyraum.
Im hinteren Teil des Grundstückes befindet sich ein abgegrenzter Gartenabschnitt mit einem praktischen und sehr geräumigen Gartenhäuschen für z.B. Gartenmöbel und -geräte.
Die Beheizung und die Warmwasseraufbereitung des Objektes erfolgt über eine Ölzentralbrennwertheizung der Marke Viessmann aus dem Jahr 2011. Der Öltank befindet sich unterirdisch im Gartenbereich gelegen.
Das gesamte Objekt ist mit einer Alarmanlage ausgestattet.
Das Objekt befindet größtenteils in einem der Baualtersklasse entsprechenden Zustand sodass umfangreiche Modernisierungs- und Renovierungsarbeiten erforderlich sind.
Die genaue Aufteilung der Räume entnehmen Sie bitte den beigefügten Grundrissplänen, welche im Detail vom Ist-Zustand abweichen können.
Lage
Die gesamte Infrastruktur einschließlich der Schul- und Freizeitmöglichkeiten ist als sehr gut zu bezeichnen. Kindergärten sowie die Grundschule Bindfeldweg und das Gymnasium Bondenwald befinden sich in direkter Umgebung. Zahlreiche Einkaufsmöglichkeiten, das Tibarg-Center, Cafés sowie Ärzte und Banken sind am nahegelegenen Tibarg/Niendorf Markt vorhanden. Das Naherho-lungsgebiet Niendorfer Gehege, das Freizeitbad Bondenwald sowie umfangreiche Freizeitmöglich-keiten sind in direkter Umgebung zu finden.
Die Anbindung an das öffentliche Nahverkehrsnetz ist durch die Bushaltestelle Bindfeldweg (Linien 5, 191) gegeben, die fußläufig in wenigen Minuten zu erreichen ist. Die U-Bahn-Station Niendorf Markt (Linie U2) befindet ebenfalls in fußläufiger Entfernung zum Objekt und stellt einen hervorra-genden Anschluss an die Hamburger Innenstadt sicher. Mit dem PKW sind die Autobahnen A 7 und A 23 in 5 – 10 Minuten sehr gut erreichbar und bieten hervorragenden Anschluss sowohl nach Hamburg selbst, als auch nach Schleswig-Holstein und Niedersachsen.
Der Flughafen Fuhlsbüttel ist ca. 15 Autominuten vom Objekt entfernt und ist auch mit den öf-fentlichen Verkehrsmitteln sehr gut zu erreichen.
Sonstiges
Sämtliche mit dem Vertrag und seiner Durchführung verbundenen Kosten gehen zu Lasten des Käufers. Die vom Käufer an uns zu zahlende Courtage beträgt 6,25% des Kaufpreises einschließlich gesetzlicher Mehrwertsteuer. Sie ist fällig und zahlbar bei Zustandekommen eines Kaufvertrages über das Grundstück. Wir weisen darauf hin, dass wir im Rahmen unserer Maklertätigkeit auch für den Verkäufer tätig sind. Bitte beachten Sie unsere untenstehenden Geschäftsbedingungen.
Bei Interesse an einer Besichtigung vereinbaren Sie bitte rechtzeitig einen Termin mit uns.
Das Angebot erfolgt freibleibend. Es wurde nach Angaben und Unterlagen des Verkäufers zusammengestellt für die wir keine Gewähr übernehmen können; Flächenangaben sind unverbindlich. Irrtum und Zwischenverkauf sind vorbehalten. Die dem Exposé eventuell beigefügten Grundrisse, Lagepläne, Flurkarten etc. sind üblicherweise elektronisch erfasst und digital in dieses Exposé eingefügt, so dass eine Maßhaltigkeit üblicherweise nicht gegeben ist. Auf Wunsch stellen wir Ihnen gerne Originalkopien zur Verfügung.
Derzeit sind wir nicht wie gewohnt über unsere Zentrale Rufnummer 040 589 7000 erreichbar.
Bis auf Weiteres erreichen Sie uns per E-Mail und telefonisch unter 040 580208.
Kontakt aufnehmen
Einfamilienhaus auf Traumgrundstück in bester Wohnlage von Hamburg-Niendorf
Haus zum Kauf
| Kaufpreis 1.175.000 € |
| Adresse 22459 Hamburg |
| Wohnfläche ca. 188,66 m² |
| Zimmer 7 |
| Nutzfläche ca. 29 m² |
| Grundstücksfläche ca. 1.301 m² |
| min. teilbare Fläche 188.66 |
| Objekt-Nr. 629 |
Käuferprovision zzgl. MwSt
Die vom Käufer an uns zu zahlende Courtage beträgt 6,25% des Kaufpreises einschließlich gesetzlicher Mehrwertsteuer. Sie ist fällig und zahlbar bei Zustandekommen eines Kaufvertrages über das Grundstück.
Energiebedarfsausweis
- Endenergiebedarf
- 114 kWh/(m²*a)
- Befeuerungsart
- Öl
- Heizungsart
- Zentralheizung
- Baujahr (Energieausweis)
- 1968
- Energieeffizienzklasse
- D
- Gültig bis
- 15.04.2028
0200400+
Ausstattung
| Anzahl Badezimmer 2 |
| Anzahl separate WCs 3 |
| Anzahl Stellplätze 2 |
| Anzahl Zimmer 7 |
| Bad mit Fenster |
| Baujahr 1968 |
| Befeuerungsart Öl |
| Flurstück 3634 |
| Gemarkung Niendorf |
| Heizungsart Zentralheizung |
| Küche Einbauküche |
| Lage/Gebiet 1A |
| Provisionspflichtig |
| Sauna |
| Sicherheitstechnik Alarmanlage |
| Stellplatzart Garage |
| Swimmingpool |
| Unterkellert |
| verfügbar ab Ab sofort frei lieferbar |
| Wasch/Trockenraum |